168飞艇开奖官网开奖记录查询结果

天信仪表电话0517-86908060
全部类别
超声波液位差计
发布时间:2021-09-08 10:36来源:字体:
一、超声波液位差计概述
超声波液位差计具有安全、清洁、精度高、寿命长、稳定可靠、安装维护方便、读数简捷等特按,广泛应用于石油、化工、水处理、水利、钢铁、煤矿、电力以及食品加工等行业,适用酸、碱、盐、防腐、高温、防爆等各种领域。
二、超声波液位差计特点
1、稳定可靠
电路设计时从电源部分起就选用高质量的模块、关键元器件的采购选择高稳定可靠的器件,完全可以直接替代国外进口仪表。
2、精度高
液位精度达到±0.3%,能够抗各种干扰波。
3、故障率低、易安装、易维护
超声波液位差计是一种非接触式仪表,不跟液体直接接触,因此故障率较低。
4、多种防护
防护等级达到IP65;所有的输入、输出线均具有防雷、防短路的保护功能。
三、超声波液位差计技术指标
1、测量范围:0~15m
2、盲    区:0.25m~0.6m
3、测距精度:0.2%
4、测距分辨率:1mm
5、压    力:常压
6、仪表显示:自带LCD显示液位和液位差值
7、模拟输出:2路4~20mA
8、数字输出:RS485、Modbus协议或定制协议
9、供电电压:DC24V/AC220V,防雷装置内置
10、环境温度:-20~60℃
11、防护等级:IP65
四、超声波液位差计仪器安装
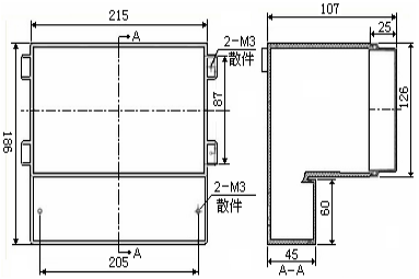
1、外形尺寸

2、安装方式
(1)在需安装仪表的地方固定L型支架,用螺丝将液位仪固定在支架上。
(2)探头上是四分或六分外螺纹,可和PVC管或铁管直接连接。
(3)也可将法兰固定在板或支架上,然后将探头固定在法兰上。
3、安装原则
(1)换能器发射面到最低液位的距离,应小于选购仪表的量程。
(2)换能器发射面到最高液位的距离,应大于选购仪表的盲区。
(3)换能器的发射面应该与液体表面保持平行。
(4)换能器的安装位置应尽量避开正下方进、出料口等液面有剧烈波 动的位置。
(5)若池壁或罐壁不光滑,仪表需离开池壁或罐壁0.5m以上。
(6)若换能器发射面到最高液位的距离小于选购仪表的盲区,需加装
(7)延伸管,延伸管需和液面垂直,内壁要保持光滑。
4、安装注意事项
(1)仪表外壳最好与大地可靠相连。
(2)电线、电缆保护管,要注意防止积水过多。
(3)仪表虽然自身带有防雷器件,但仪表在多雷地区使用时,最好在仪表的进出线端另外安装专用的防雷装置。
(4)仪表在特别炎热、寒冷的地方使用,即周围环境温度有可能超出仪表的工作要求时,最好在液位仪周围加设防高、低温装置。 返回
标签:超声波液位差计,液位差计
168飞艇开奖官网开奖记录查询结果